Společenský dům Krnsko (nová Hasičárna)
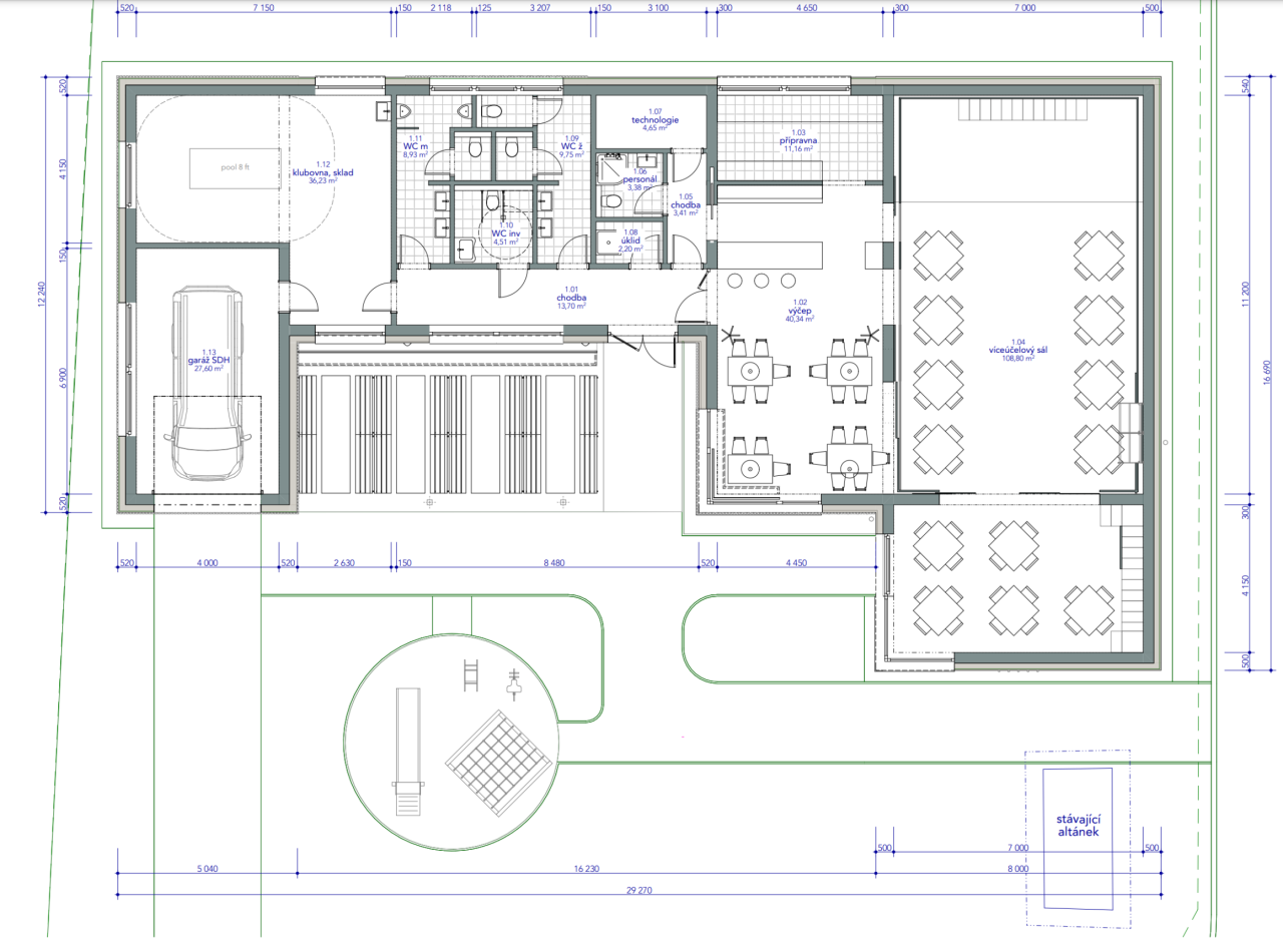
- Vnitřní uspořádání stavby (zejména ohledně účelu), bylo diskutováno mezi zastupitelstvem a projektanty. Tím byl dán základ k celkovému požadavku na funkčnost objektu.
- Několikrát jsme se sešli a probírali každou budoucí místnost a její možné využití.
- Výsledkem je finální prostorové rozložení stavby na daném pozemku, kdy tímto můžeme pokračovat v další fázi, což bude tvorba projektu. Pak bude následovat povolení stavby a shánění dotace.
- Prozatím můžete nakouknout na budoucí stavbu Společenského domu Krnsko ve stavu studie.
Datum poslední aktualizace: 30. 10. 2024 18:52



